Продажа 1-комнатной квартиры

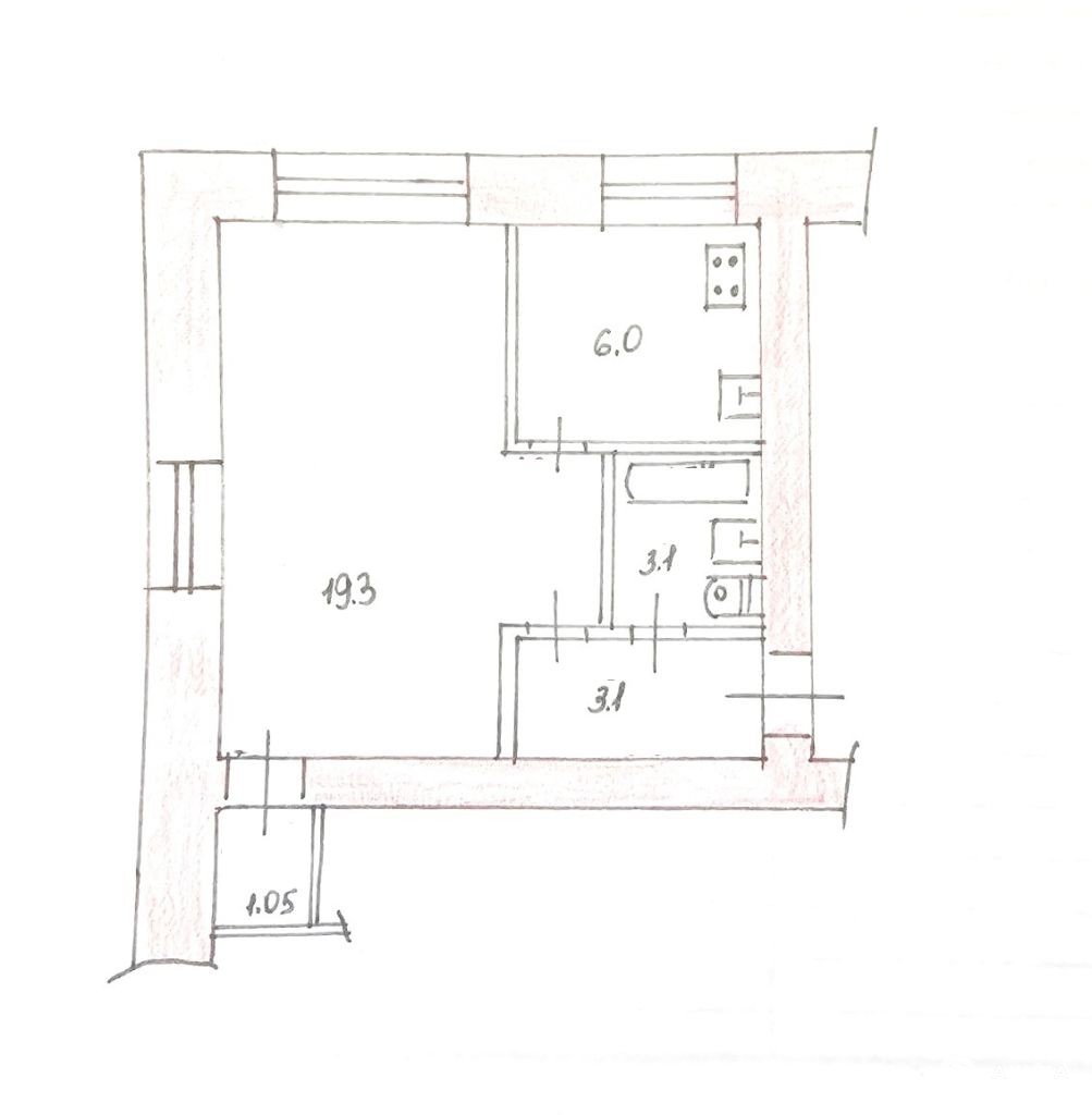
33 м²
Площадь
19.30 м²
Жилая площадь
6.00 м²
Площадь кухни
2/5
Этаж

6 200 000 ₽

187 879 ₽ за м²

ID объявления 12180447

Поделиться

Добавить в избранное

АН Изумруд предлагает к покупке интересный, с точки зрения арендной   инвестиции объект, в центре   Казани!!!
О КВАРТИРЕ:
- не высокий этаж;
- два пластиковых окна позволяют провести зонирование комнаты;
- удобная гардеробная;
- санузел совмещенный;  
- современная газовая колонка;
-   счетчик холодной воды и газа;  
- высокоскоростной интернет;  
- не надо переплачивать за чужой ремонт

ПРЕИЩУЩЕСТВА ОБЪЕКТА:    
-  в доме произведен капитальный ремонт;
-   прекрасная транспортная доступность;    
-   окна выходят во двор;    
-   большой зеленый двор;  
-   есть большая парковка.

ИНВЕСТИЦИОННЫЕ ПРЕИМУЩЕСТВА:    
- Выгодная цена.
- Локация: туристическая часть города.
- Высокая доходность от посуточной/долгосрочной   аренды.

ОФОРМЛЕНИЕ/СДЕЛКА:    
-   Любая форма расчета;    
-   Вся сумма в договоре;    
- Быстрый выход на сделку;    
- Подходит под ипотеку;
- Один взрослый собственник.


Отвечу на любые дополнительные вопросы. Показы преимущественно в дневное время с 11: 00-20: 00, по срочному просмотру или иному времени прошу звонить.
  Все фото и квартира реальные!!!
Рядом улицы: Халева,   Ботаническая, Шаляпина. Назарбаева,   Спартаковская, Ипподромная, Качалова, Газовая, Роторная, Даурская,      

 

Дата обновления: 30 октября 2025

Квартира Ипотека От собственника