Продажа дома

Татарстан, Лесные Моркваши, ул. Лесная

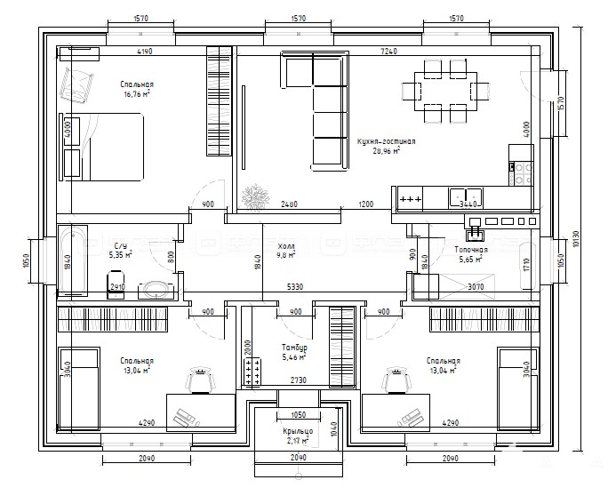
100 м²
Площадь
1
Этажность

7 999 999 ₽

80 000 ₽ за м²

ID объявления 12271653

Поделиться

Добавить в избранное

Объект №116437 Ваш идеальный дом в Лесных Морквашах!Просторный одноэтажный дом (100 кв.м) с тремя спальнями, двумя санузлами и кухней-студией с выходом на террасу –  все это ждет вас в живописном коттеджном поселке Лесные Моркваши, на берегу Волги!  Участок 5, 6 соток.  Идеальное место для комфортной жизни всей семьи.  Покупка доступна по всем льготным ипотечным программам!  Не упустите свой шанс –  звоните сегодня!

Дата обновления: 2 декабря 2025