Продажа помещения свободного назначения

Татарстан Республика, Казань г., Односторонки Гривки пер., 10

21 900 000 ₽

219 880 ₽ за м²

100 м²
Площадь
1/5
Этаж

Поделиться

Добавить в избранное

Описание объекта

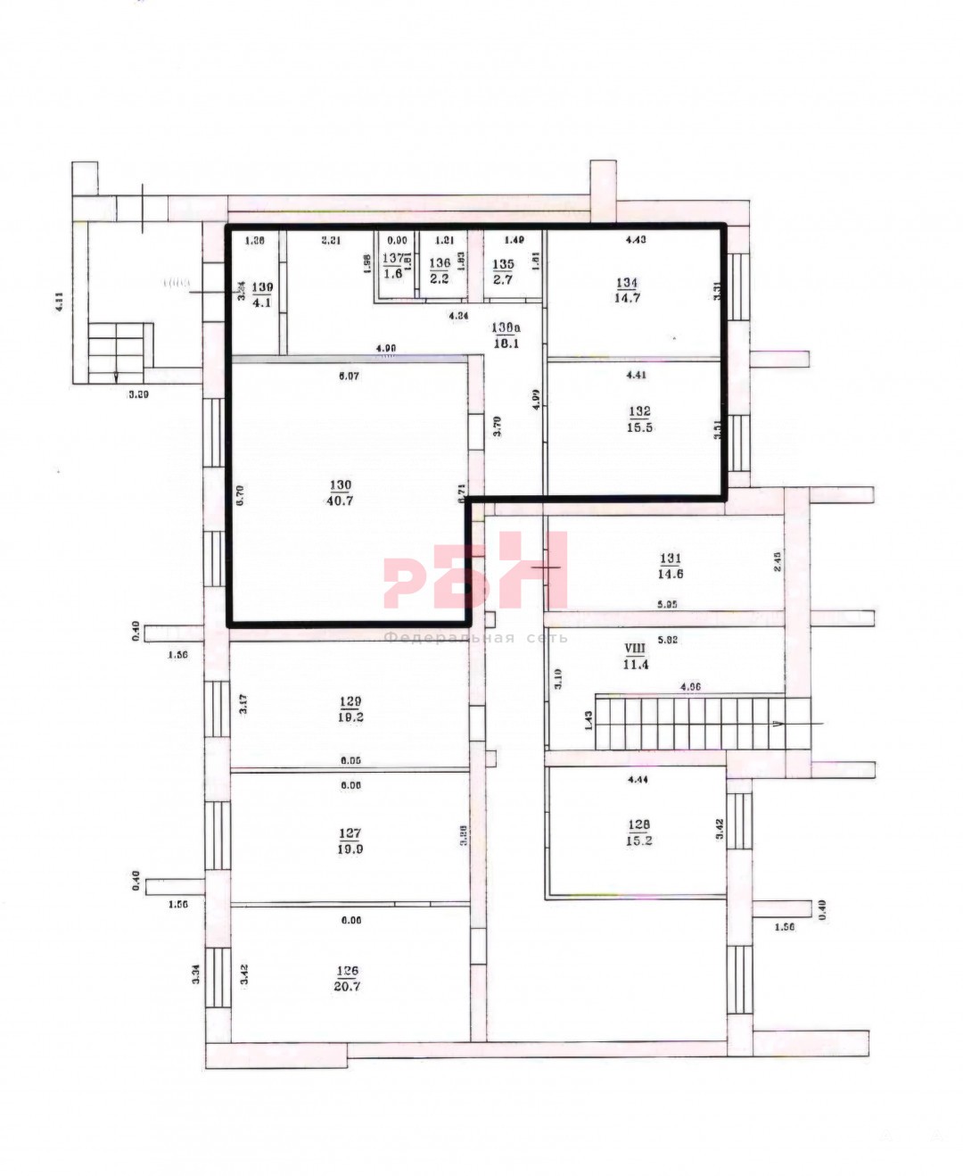
Продаётся помещение с ремонтом в Кировском районе,
Общая площадь помещения - 99.61 кв.м.

Помещение располагается на 1 этаже 5 этажного жилого дома.

Технические характеристики помещения:
Наличие наземной парковки;Высокий цокольный этаж;Отдельный вход;Безбарьерный вход;5 кВт эл.мощности с возможностью увелечения;Отопление/водоснабжение - централизованное;Канализация - городская;Высота потолка - 2.8 м.;2 мокрые точки с возможностью увеличения;4 окна;Современный ремонт.

Преимущества данного помещения:
Место для наружной вывески;Круглосуточный доступ;Охранная сигнализация;Камеры видеонаблюдения;Плотная жилая застройка;Развитая инфраструктура;



Подходит под любой вид коммерческой сферы.

В шаговой доступности: магнит, пятерочка, остановка общественного транспорта, аптеки, пекарни.

По всем вопросам пишите или звоните.
Адель, брокер по коммерческой недвижимости группы компаний "Регион Бизнес Недвижимость"
Скрыть
Арт. 132684226

Дата обновления: 18 марта 2026