Продажа здания

Татарстан Республика, Казань г., Карла Маркса ул., 12, к а

190 000 000 ₽

315 144 ₽ за м²

603 м²
Площадь
1/2
Этаж

Поделиться

Добавить в избранное

Описание объекта

Продается отдельно стоящее здание в Вахитовском районе, по ул. Карла Марска

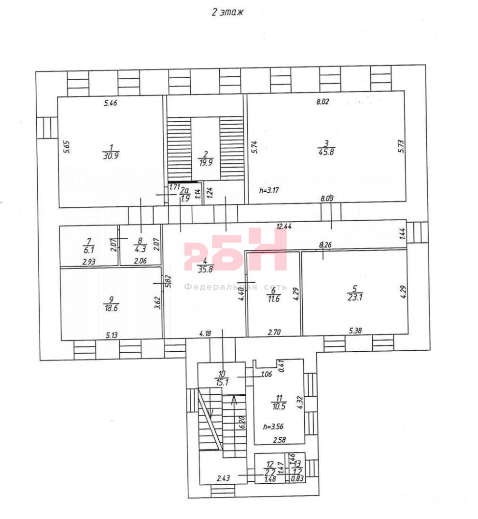
Общая площадь здания - 602.9 кв.м.

Земельный участок площадью 770 кв.м.

Здание не является объектом культурного наследия. На данный момент на основание утвержденного городом проекта производится установка входной группы с улицы.

Земельный участок на 18 машино мест.

Характеристики:Первая линия;Цоколь - 126 кв.м.;Первый этаж площадью 220 кв.м.;Второй этаж площадью 227 кв.м.;Мансарда 28.8 кв.м.;Выделенная эл. мощность – 100 кВт;


Здание находится в культурном центре Казани.

Рядом расположены: Учебные учреждения , остановки общественного транспорта.

Непосредственная близость к туристическим маршрутам и достопримечательностям города.
Арт. 110701102

Дата обновления: 18 ноября 2025